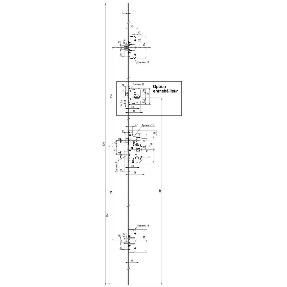
VACHETTE SÉRIE 5700 - AXE 50 MM - COTE D : 1045 MM

Vachette

Description

Serrure à larder automatique 5 points (4 goujons et 1 pêne dormant demi-tour). Pour porte palière d'appartement en bois ou en métal. Têtière 18 mm. Entraxe 70 mm, fouillot 7 mm. Percée pour fixations de rosaces ou d'ensemble. Réversible droite/gauche sans démontage. Coupe-feu pare-flamme 1/2 heure sur porte bois et 1 heure sur porte acier. Entraxe 70 mm, fouillot 7 mm. Livrée sans cylindre, sans gâches (Réf.019558).

Caractéristiques
techniques

  • Axe fouillot mm - 50
  • Cote d mm - 1045
  • Longueur mm - 2040
  • Modèle - 5700
  • Têtière - 18 mm

AVIS CLIENTS

Ce produit n'a pas encore d'avis client.